Moderno Departamento Con Vistas Despejadas 2d + 3b
- UF17.200
- UF17.200
Descripción
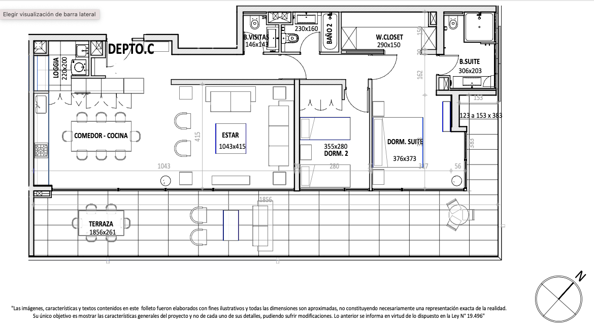
Este departamento se ubica en un edificio de arquitectura contemporánea, rodeado de áreas verdes y con vistas urbanas. Cuenta con una superficie total de 173 m² y una superficie útil de 118 m², distribuidas en espacios funcionales y bien definidos. El diseño interior destaca por sus acabados en tonos neutros y materiales de calidad, con amplios ventanales que permiten la integración de los ambientes con el exterior. Dispone de dos dormitorios, cada uno con acceso a luz natural y espacios de almacenamiento. El dormitorio principal incluye un walk-in closet y baño en suite, equipado con ducha y ventanales al exterior, con vistas Nororiente. El segundo dormitorio también cuenta con closet y está próximo a un baño completo. El departamento ofrece tres baños (uno de visita) en total, con terminaciones modernas y funcionales. La cocina está equipada con mobiliario de líneas rectas y electrodomésticos integrados (marca Gorenge), además de una zona de comedor que se conecta con la terraza. La logia queda escondida, y viene equipada con lavadora y secadora Bosch. El living se extiende hacia la terraza, proporcionando un ambiente ideal para reuniones y actividades sociales. El departamento incluye una bodega, lo que facilita el almacenamiento adicional. El edificio permite mascotas y cuenta con áreas comunes que favorecen la convivencia. La terraza perimetral ofrece vistas despejadas y espacio para mobiliario exterior, ideal para disfrutar del entorno urbano. A pasos de restaurantes, comercio local y supermercado. Gran ubicación si se busca vivir en Vitacura y también excelente como alternativa de inversión.
Dirección
Abrir en Google Maps-
Ciudad: Santiago
-
Región: Región Metropolitana
-
Comuna: Vitacura
-
País: Chile
Detalles
Updated on marzo 25, 2026 at 12:32 pm-
Precio UF17.200
-
Tamaño de propiedad 118
-
Superficie total 173
-
Dormitorios 2
-
Baños 3
-
Estacionamientos 2
-
Año Construcción 2021
-
Tipo de propiedad Departamento
-
Estado de la propiedad Venta
















